名稱:BF型單法蘭松套限位伸縮接頭
產品介紹:
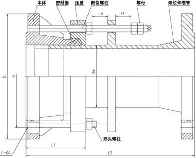
單法蘭松套限位伸縮接頭,型號BF/VSSJA-1或BF型,單法蘭松套限位伸縮接頭是由松套伸縮接頭和一個限位短管組合而成。單法蘭松套限位伸縮接頭能防止管道因超量位移導致補償接頭的泄漏或損壞,主要用于在允許位移范圍內吸收軸向位移和承受軸向壓力推力的管道松套連接。
應用范圍:
BF型單法蘭松套限位伸縮接頭,產品適用于輸送海水、淡水、冷熱水、飲用水、生活污水、原油、燃油、潤滑油、成品油、空氣、煤氣、溫度不高于250度的蒸汽和顆粒粉狀等介質。
單法蘭松套限位伸縮接頭優點:安裝方便快捷、密封可靠、維修方便。
單法蘭松套限位伸縮接頭特點:實現了管道一邊法蘭連接,一邊為焊接的不一致性的方便連接。
VSSJA-1/BF VSSJA-2/B2型法蘭松套限位伸縮接頭基本尺寸(PN0.6 1.0MPa)
稱尺寸 DN |
管子外徑DW | 外形尺寸 | 伸縮量δ | 法蘭連接尺寸 | ||||||||
DW | D0 | L | L2 | L1 | 0.6Mpa | 1.OMpa | ||||||
D | K | n-do | D | K | n-do | |||||||
65 | 76 | 76 | 340 | 340 | 105 | ±25 | 160 | 130 | 4-¢14 | 185 | 145 | 4-¢18 |
80 | 89 | 89 | 190 | 150 | 4-¢18 | 200 | 160 | 8-¢18 | ||||
100 | 108 | 108 | 21O | 170 | 220 | 180 | ||||||
114 | 114 | |||||||||||
125 | 133 | 133 | 240 | 200 | 8-¢18 | 250 | 210 | |||||
140 | 140 | |||||||||||
150 | 159 | 159 | 265 | 255 | 285 | 240 | 8-¢23 | |||||
168 | 168 | |||||||||||
200 | 219 | 219 | 320 | 280 | 340 | 295 | ||||||
250 | 273 | 273 | 375 | 335 | 12-¢18 | 395 | 350 | 12-¢23 | ||||
300 | 325 | 325 | 350 | 370 | 130 | ±32.5 | 440 | 395 | 12-¢23 | 445 | 400 | 16-¢22 |
350 | 377 | 377 | 490 | 445 | 505 | 460 | 16-¢26 | |||||
400 | 426 | 426 | 540 | 495 | 16-¢23 | 565 | 515 | 20-¢26 | ||||
450 | 480 | 480 | 595 | 550 | 615 | 565 | ||||||
500 | 530 | 530 | 645 | 600 | 20-¢23 | 670 | 620 | 20-¢30 | ||||
600 | 630 | 630 | 755 | 705 | 20-¢27 | 780 | 725 | 24-¢30 | ||||
700 | 720 | 720 | 860 | 810 | 24-¢27 | 895 | 840 | 24-¢33 | ||||
800 | 820 | 820 | 590 | 600 | 220 | ±65 | 975 | 920 | 24-¢30 | 1015 | 950 | 28-¢33 |
900 | 920 | 920 | 1075 | 1020 | 1115 | 1015 | 28-¢36 | |||||
1000 | 1020 | 1020 | 1175 | 1120 | 28-¢30 | 1230 | 1160 | 28-¢36 | ||||
1200 | 1220 | 1220 | 1405 | 1340 | 32-¢33 | 1455 | 1380 | 32-¢40 | ||||
1400 | 1420 | 1424 | 640 | 1630 | 1560 | 36-¢36 | 1675 | 1590 | 36-¢42 | |||
1600 | 1620 | 1624 | 1830 | 1760 | 40-¢36 | 1915 | 1820 | 40-¢48 | ||||
1800 | 1820 | 1824 | 2045 | 1970 | 44-¢39 | 2115 | 2020 | 44-¢48 | ||||
2000 | 2020 | 2026 | 2265 | 2180 | 48-¢42 | 2325 | 2230 | 48-¢48 | ||||
2200 | 2220 | 2226 | 2475 | 2390 | 52-¢42 | 2550 | 2440 | 52-¢56 | ||||
2400 | 2420 | 2426 | 2685 | 2600 | 56-¢42 | 2760 | 2650 | 56-¢56 | ||||
2600 | 2620 | 2626 | 600 | 710 | 240 | ±75 | 2905 | 2810 | 60-¢48 | 2960 | 2850 | 60-¢56 |
2800 | 2820 | 2826 | 3115 | 3020 | 64-¢48 | 3180 | 3070 | 64-¢56 | ||||
3000 | 3020 | 3026 | 3315 | 3220 | 68-¢48 | 3405 | 3290 | 68-¢60 | ||||
3200 | 3220 | 3230 | 3525 | 3430 | 72-¢48 | - | - | - | ||||
3400 | 3420 | 3432 | 3735 | 3640 | 76-¢48 | - | - | - | ||||
3600 | 3620 | 3632 | 3970 | 3860 | 80-¢56 | - | - | - |
VSSJA-1/BF VSSJA-2/B2F型法蘭松套限位伸縮接頭基本尺寸(PN1.6 2.5Mpa)
公稱尺寸DN | 管子外徑DW | 外形尺寸 | 伸縮量δ | 法蘭連接尺寸 | ||||||||
Dw | do | L | L2 | L1 | 1.6Mpa | 2.5Mpa | ||||||
D | K | n-do | D | K | n-d0 | |||||||
65 | 76 | 76 | 340 | 340 | 105 | ±25 | 185 | 145 | 4-¢14 | 185 | 145 | 8-¢18 |
80 | 89 | 89 | 200 | 160 | 8-¢18 | 200 | 160 | |||||
100 | 108 | 108 | 220 | 180 | 235 | 190 | 8-¢22 | |||||
114 | 114 | |||||||||||
125 | 133 | 133 | 250 | 210 | 270 | 220 | 8-¢26 | |||||
140 | 140 | |||||||||||
150 | 159 | 159 | 285 | 240 | 8-¢22 | 300 | 250 | |||||
168 | 168 | |||||||||||
200 | 219 | 219 | 340 | 295 | 12-¢22 | 360 | 31O | 12-¢26 | ||||
250 | 273 | 273 | 405 | 355 | 12-¢26 | 425 | 370 | 12-¢30 | ||||
300 | 325 | 325 | 350 | 370 | 130 | ±32.5 | 460 | 410 | 485 | 430 | 16-¢30 | |
350 | 377 | 377 | 520 | 470 | 16-¢26 | 555 | 490 | 16-¢33 | ||||
400 | 426 | 426 | 580 | 525 | 16-¢30 | 620 | 550 | 16-¢36 | ||||
450 | 480 | 480 | 640 | 585 | 20-¢30 | 670 | 600 | 20-¢36 | ||||
500 | 530 | 530 | 715 | 650 | 20-¢33 | 730 | 660 | |||||
600 | 630 | 630 | 840 | 770 | 20-¢36 | 845 | 770 | 20-¢39 | ||||
700 | 720 | 720 | 910 | 840 | 24-¢36 | 960 | 875 | 24-¢42 | ||||
800 | 820 | 820 | 590 | 600 | 220 | ±65 | 1025 | 950 | 24-¢39 | 1085 | 990 | 24-¢48 |
900 | 920 | 920 | 1125 | 1050 | 28-¢39 | 1185 | 1090 | 28-¢48 | ||||
1000 | 1020 | 1020 | 1255 | 1170 | 28-¢42 | 1320 | 121O | 24-¢56 | ||||
1200 | 1220 | 1220 | 1485 | 1390 | 32-¢48 | 1530 | 1420 | 32-¢56 | ||||
1400 | 1420 | 1424 | 640 | 1685 | 1590 | 36-¢48 | 1755 | 1640 | 36-¢62 | |||
1600 | 1620 | 1624 | 1930 | 1820 | 40-¢56 | 1975 | 1860 | 40-¢62 | ||||
1800 | 1820 | 1824 | 2130 | 2020 | 44-¢56 | 2195 | 2070 | 44-¢70 | ||||
2000 | 2020 | 2026 | 2345 | 2230 | 48-¢62 | 2425 | 2300 | 48-¢70 |
上一篇:【B2F型雙法蘭松套限位伸縮接頭】
下一篇:【VSSJA-2型雙法蘭限位伸縮接頭】
豫公網安備 41910102000522號
地址:鞏義市永安路南段 0371-64393352 64580820 傳 真:0371-64031200 手 機:15903663076